Navy RBP and RCP Diversity Receivers
RBP Dual Triple-Diversity HF Receiver System
RCP Triple-Diversity HF Receiver System

RBP & RCP Spec Sheets

3-24 mc, RBP operates as two triple-diversity systems, three dual-diversity systems, or six separate receivers
(RBP and RBP-1 differ only in contract number)

RCP is 1/2 of an RBP

RBP-1 (6 receivers)
rbp-fig1.jpg (742204 bytes)
RCP (3 receivers)
rbp-fig2.jpg (1262867 bytes)
RBP at Skaggs Island 1945
skaggs_1945_rbp-3.jpg (74652 bytes)
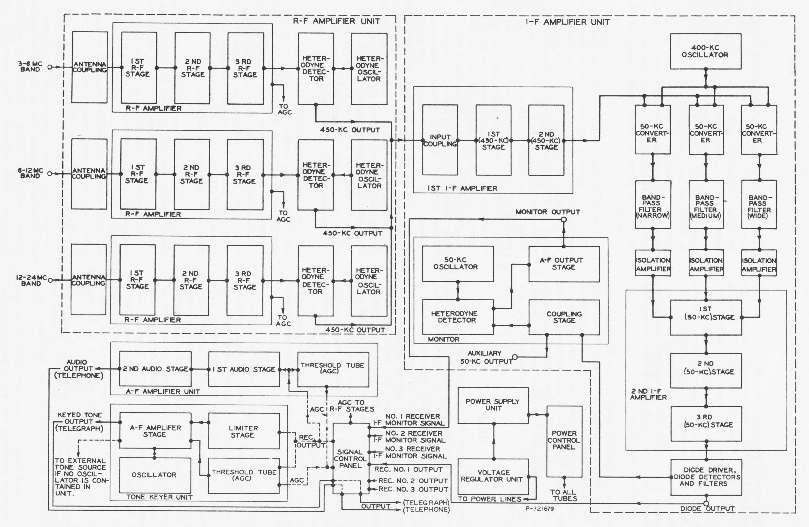
Block Diagram - 1 receiver
rbp-fig3.jpg (473718 bytes)
Spec Sheets
rbp-01.jpg (131746 bytes)
-
rbp-02.jpg (52302 bytes)
RCP rear view
rbp-rear-01.jpg (1992062 bytes)
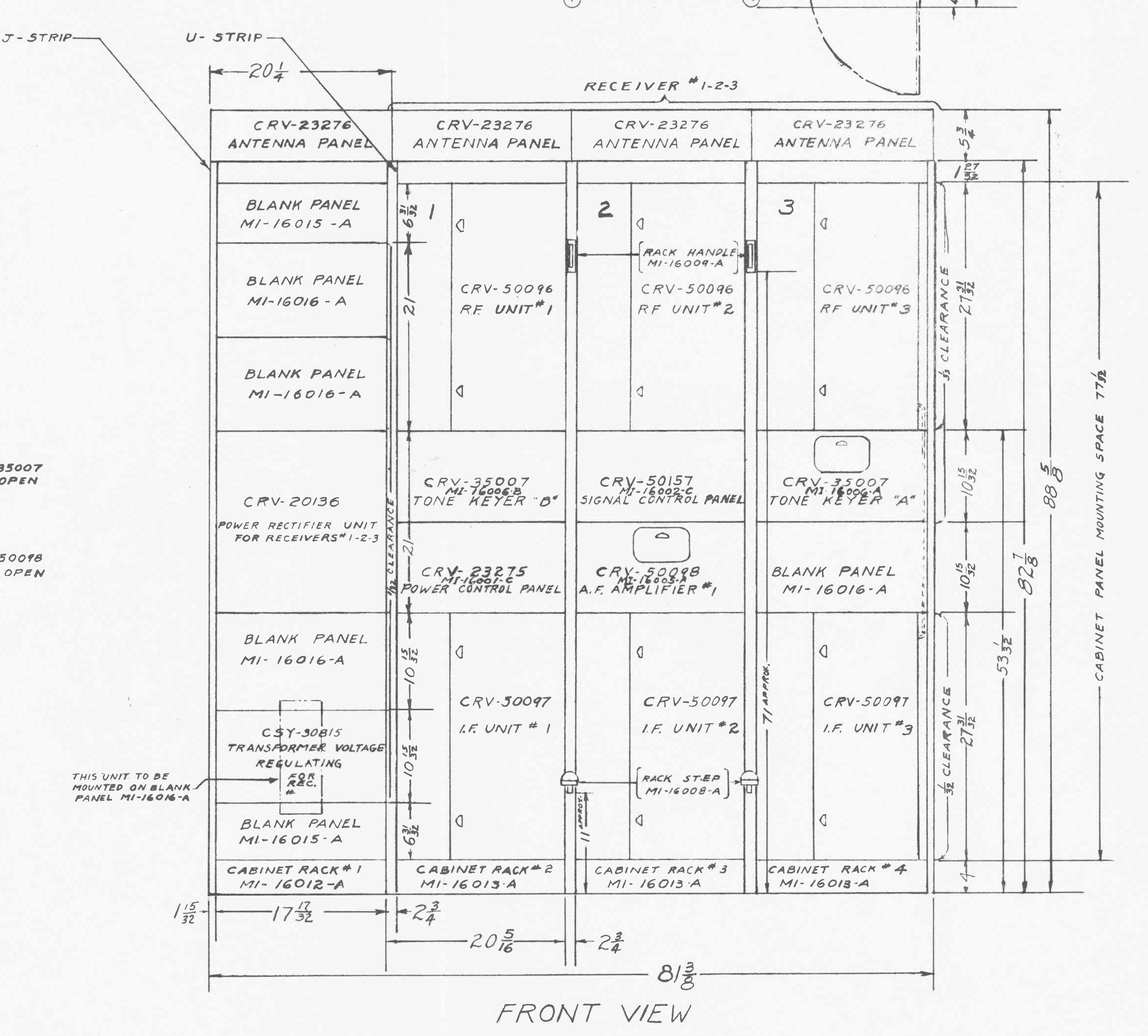
RCP installation drawing
rbp-dwg-01.jpg (530010 bytes)
== ==

NAVSHIPS 900,478 Manual for RBP-1 & RCP-1
(thanks to AWA)

skaggs_1945_rbp-2.jpg (67934 bytes)